Skip to content
  • 403-818-3907
  • Connect
    • Email
    • X
    • Facebook
    • LinkedIn
    • Instagram
home logo
Skip to content
  • Home
  • Community Impact
    • Women’s Expo – Enter to Win Accommodations to Golden Sunset Villa in Playa Hermosa
    • 2026 DUCK HUNT
    • 2025 Christmas Display Winner
    • 2025 DUCK HUNT
    • DUCK HUNT 2024!
    • Community Seminars
  • About Us
    • About Us
      • Robyn Moser
      • Charleen Nickel
      • Anna Taranova
    • Testimonials
    • Tipsy Realtors
      • Get the Book!
  • Featured Listings
    • Featured Listings
    • Office Listings
  • Calgary Info
  • Blog

15 Copperpond Landing SE

Copperfield – Calgary, AB

39
  • 15 Copperpond Landing SE
  • $424,900
  • 3 bedrooms
  • 3 bathrooms
  • 1,343 sqft
1 of 39
Courtesy of Robyn Moser of RE/MAX Realty Professionals
  • Details

  • List Price $424,900
  • MLS® # A2288713
  • Style 2 Storey
  • Bedrooms 3
  • Bathrooms 3 (1 partial)
  • Year Built 2011
  • Age 15
  • Floor Space 1,343 sqft
  • Condo Fees $297
  • Features Backs on to Park/Green Space, Street Lighting
  • Amenities Breakfast Bar, Closet Organizers, Granite Counters, No Animal Home, No Smoking Home, Open Floorplan, Pantry, Track Lighting, Walk-In Closet(s)
  • Address 15 Copperpond Landing SE, Calgary, AB, T2Z 1G6

About

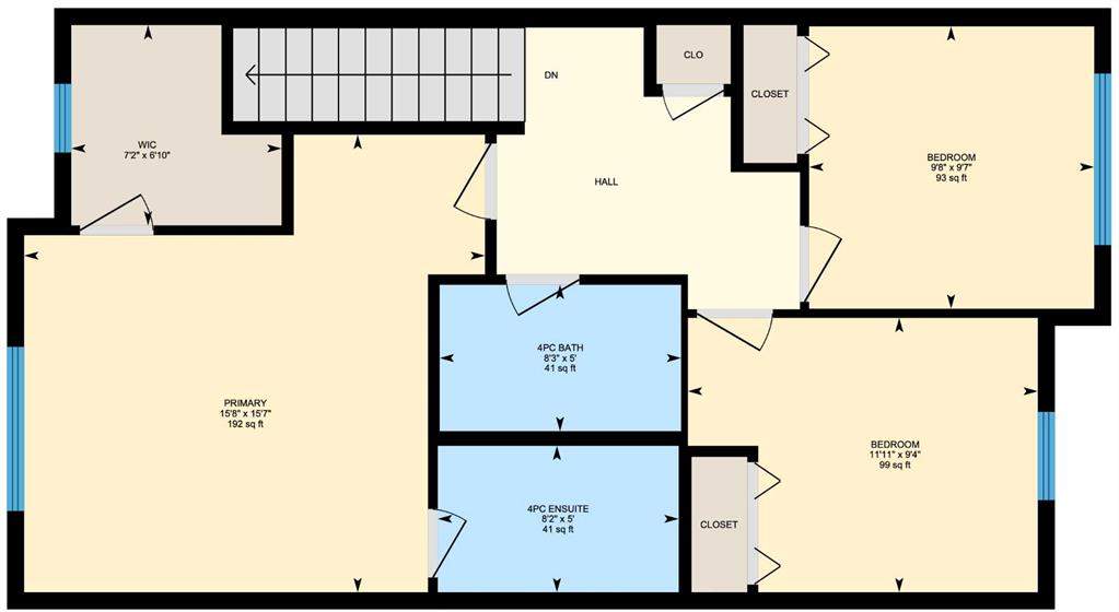
What in incredible opportunity to own your own little piece of paradise. This barely lived in home is up for sale by the first owners. They can guarantee there has never been any animals or smoking within the property in their ownership. This home is just like new. A front attached garage to hide your car away from the elements! An open kitchen with lots of cabinet and counterspace. A large eating area that looking out onto road, this door you can use as your primary if you want it to feel more like a house and less like a townhouse. The living room gives you lots of room for relaxing or visiting with friends and family. Three spacious bedrooms upstairs give everyone lots of room to spread out, whether it be kids or roommates. AC is an added plus. The unfinished basement is perfect to expand your living space or to add in more bedrooms, if that is what you are looking for. All of this at a price that is unheard of. These kind of opportunities don’t happen open so don’t miss out.

Contact

Arrange Showing
Robyn Moser & Associates - Calgary Real Estate Professionals
  • A featured listing of
    Robyn Moser & Associates – Calgary Real Estate Professionals
  • My Office RE/MAX Realty Professionals
  • Mobile 403-818-3907
  • Email robyn@robynmoser.com

Community

Mortgage calculator

GET IN TOUCH
403-818-3907
robyn@robynmoser.com

RE/MAX Realty Professionals
#10, 6020 - 1A Street SW
Calgary, AB T2H 0G3

RE/MAX Realty Professionals — #10, 6020 - 1A Street SW Calgary, AB T2H 0G3 — 403-818-3907
© 2026 Robyn Moser & Associates - Calgary Real Estate Professionals
Home / A2288713
Data is supplied by Pillar 9™ MLS® System. Pillar 9™ is the owner of the copyright in its MLS® System. Data is deemed reliable but is not guaranteed accurate by Pillar 9™. The trademarks MLS®, Multiple Listing Service® and the associated logos are owned by The Canadian Real Estate Association (CREA) and identify the quality of services provided by real estate professionals who are members of CREA. Used under license. Listing data last updated 2026-04-10T22:22:33Z.
Powered by Avenue
The growth engine for driven real estate professionals.